image

Espoo, Iirislahti

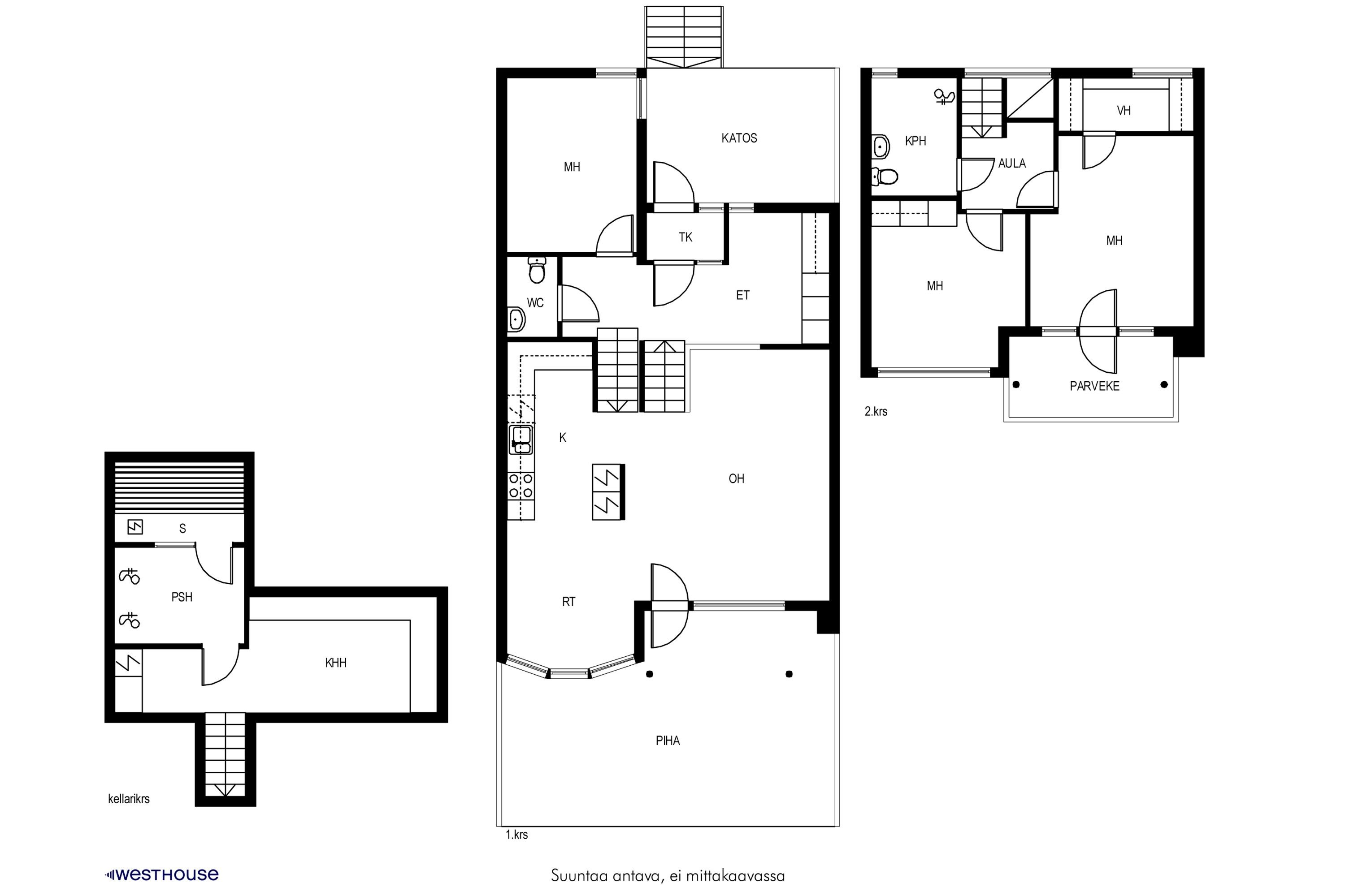
RT
136 m²
4h, k, 2 kph, s, erill wc, khh, terassi, parveke
615 000 €

Esittelyteksti

Iirislahdenranta, 02230 Espoo

Viehättävä rivitalokoti merellisessä Iirislahdessa

Tämä viehättävä rivitalokoti merellisessä Iirislahdessa tarjoaa rauhallista asumista perheille. Koti sijaitsee hyvin rauhallisella ja vehreällä paikalla joen äärellä.

Vuonna 1991 valmistuneessa rivitalokodissa on erinomaiset mittasuhteet ja asuintilat on porrastettu mukavasti kolmeen eri tasoon. Lisäksi kodissa on kellarikerros, jossa tilavat uudistetut sauna- ja kodinhoitotilat.

Reilun kokoinen eteisaula sijoittuu kerrosten keskelle, josta muutama porras ylätasolle ja muutama olohuone- ja keittiötasolle.

Olohuoneessa on tunnelmaa ja lämpöä luova takka ja keittiössä erkkerimäinen ruokailutila, josta kauniit näkymät pihalle päin. Valkoinen keittiö on vasta uudistettu ja ruokailutilassa on tilaa suuremmallekin seurueelle.

Kodin yläkerrassa sijaitsee kaksi reilun kokoista makuuhuonetta. Päämakuuhuoneessa on kätevä vaatehuone sekä käynti parvekkeelle. Yläkerrassa on myös toinen uudistettu kylpyhuone mikä helpottaa arkea.

Iirislahden alue on rauhallinen ja ihanteellinen perheille. Alueelta löytyy sekä suomen- että ruotsinkieliset koulut ja päiväkodit. Kattavat palvelut löytyvät lyhyen ajomatkan päästä Iso Omenasta. Liikenneyhteydetkin ovat sujuvat, sillä lähistöllä on sekä bussipysäkki että metroasema.

Tämä koti tarjoaa täydellisen yhdistelmän rauhallista asumista meren läheisyydessä ja hyviä palveluja.

Lisätiedot ja esittelypyynnöt:
Alexandra Köhring
040-524 9788
alexandra.kohring@westhouse.fi

Kohdetiedot

Asuinpinta-ala

136 m²

Muu pinta-ala

0 m²

Huoneet

4h, k, 2 kph, s, erill wc, khh, terassi, parveke

Kerros

/4

Hoitovastike

408 €

Myyntihinta

615.000 €

Velaton hinta

615.000 €

Huoneisto

Tilat

4h, k, 2 kph, s, erill wc, khh, terassi, parveke

Asuinpinta-ala n.

136 m²

Ikkunoiden suunta

Vehreät näkymät takapihalle ja terassille

Keittiö/varusteet

Vaalea vuonna 2024 uudistettu avokeittiö yhdistyy saumattomasti ruokailutilan ja olohuoneen kanssa. Keittiössä on kätevästi lasku- ja säilytystilaa sekä kaunis aamiaskaappi. Keittiöstä vehreät näkymät sekä uloskäynti huoneiston terassille ja pihalle,

Kph/wc/varusteet

Huoneistossa on vuonna 2020 uudistetut kaksi kylpyhuonetta ja erillinen WC. Yksi kylpyhuone sijaitsee ylimmässä kerroksessa ja saunatilojen yhteydessä oleva kylpyhuone, jossa kaksi suihkua sijaitsee kellarikerroksessa. Lisäksi erillinen WC sisääntulokerroksessa.

Sauna

Kaunis sauna uudistettu vuonna 2020 ja uudelleen paneloitu vuonna 2025. Saunatiloissa kaksi suihkua.

Vapautuu

Heti

Kunto

Hyvä

Energialuokka

Ei lain edellyttämää energiatodistusta

Lisätietoja

Huoneistolla on vehreä takapiha, jossa reilun kokoinen terassi sekä nurmea. Yhtiön piha jatkuu kauniisti Gräsanojalle jonka reunassa laituri. Huoneiston etupuolella on myös etupiha.

Yhtiö

Nimi

Asunto Oy Iirislahdenranta 14

Rakennusvuosi

1991

Tontin pinta-ala

3105 m²

Tontin omistus

Oma

Rakennusaine

Tiili ja betoni

Lämmitys

Sähkö, takka ja lattialämmitys

Kaavoitustilanne

Asemakaava

Autopaikat

Huoneiston käytössä on ollut yksi katospaikka ja yksi pihapaikka

Asumiskustannukset

Yhtiövastike

408 €

Muut maksut

Yhtiökokouksessa päätetty valtuuttaa hallitus perimään enintään kaksi ylimääräistä hoitovastiketta tai jättää perimättä rahatilanteen salliessa kaksi vastiketta

Hinta

Myyntihinta

615.000 €

Velaton hinta

615 000 €

Tätä kohdetta sinulle esittelee

Alexandra Köhring

Kiinteistönvälittäjä LKV

+358405249788

alexandra.kohring@westhouse.fi

  • Kenttä on validointitarkoituksiin ja tulee jättää koskemattomaksi.
  • This field is hidden when viewing the form
Westhouse Lkv