image

Vantaa, Vestra

OKT
196 m²
5 mh, oh, k, khh, s, kph, 3 x wc
489 000 €

Esittelyteksti

Siilotie 4, 01750 Vantaa

Kaunis ja persoonallinen koti, jossa on väriä ja tyyliä.

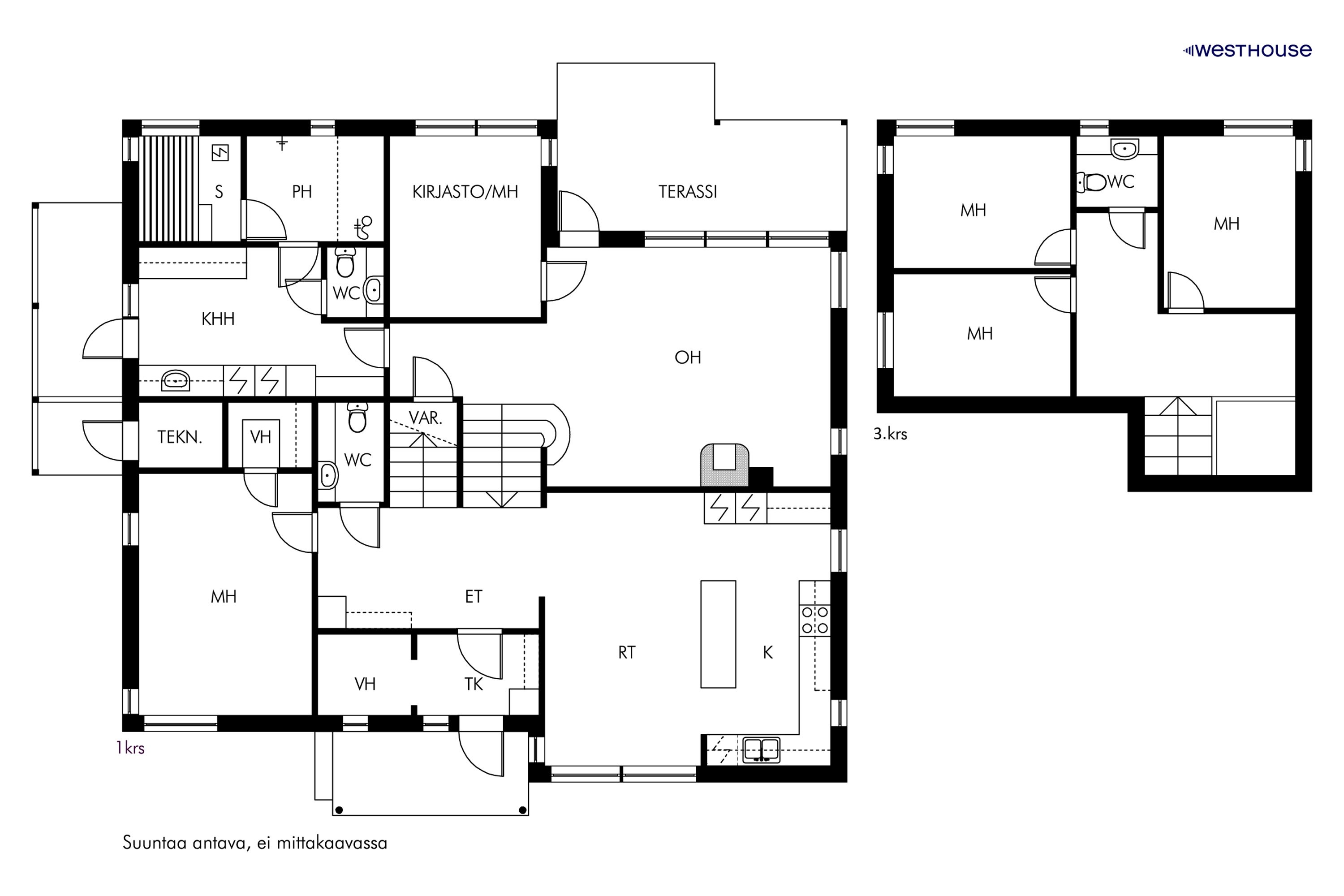
Viidellä makuuhuoneella varusteltu koti taipuu monen perheen tarpeeseen. Talossa on reilusti avaraa ja yhtenäistä tilaa suuremmankin perheen tai ystäväseurueen yhdessäoloon. Korkea, viisto sisäkatto ja suuret, puutarhaan avautuvat ikkunat lisäävät avaruuden tuntua entisestään. Asuintilat ovat kolmessa tasossa, mahdollistaen tilojen yksityisyyden.
Olohuoneen näyttävä kiertoilmatakka jakaa keskeisen sijaintinsa ansiosta lämpöä muuallekin asuintiloihin. Olohuoneesta on käynti terassille, jossa ulkoporeallas houkuttelee tunnelmalliseen rentoutumiseen ympäröivän pihan suojissa.

Kodin sydämenä toimiva keittiö on tyylikäs ja moderni, ja se on uusittu vuonna 2021. Myös saunaa, pesuhuonetta, kodinhoitohuonetta ja kolmea wc-tilaa on modernisoitu viime vuosien aikana. Sisäänkäynnin yhteydessä oleva arkieteinen tuo kaivattua ryhtiä arjen toimintoihin. Asuinrakennuksessa, kuten myös erillisessä 40 neliön autotallirakennuksessa, on maalämpö.

Oma 2240 2:n tontti sijaitsee idyllisessä ja harvaanasutussa Vestran kaupunginosassa, Vantaan Kivistön alueen tuntumassa. Alue on maaseutumaista ja maastoltaan polveilevaa, metsäistä ja peltoista Lepsämänjoen halkomaa aluetta.

Tervetuloa tutustumaan!

Sovi oma esittelyaikasi:
Sari Kivinen
sari.kivinen@westhouse.fi
0400 461824

Kohdetiedot

Asuinpinta-ala

175 m²

Muu pinta-ala

21 m²

Huoneet

5 mh, oh, k, khh, s, kph, 3 x wc

Kerros

1-3/3

Myyntihinta

489.000 €

Velaton hinta

489.000 €

Huoneisto

Tilat

5 mh, oh, k, khh, s, kph, 3 x wc

Asuinpinta-ala n.

175 m²

Keittiö/varusteet

Todella tilava ja valoisa Noblessan keittiö, joka on uusittu vuonna 2021. Näyttävät mustat kaapistot ja integroidut kodinkoneet. Työtasot ovat komposiittia. Saareke jakaa keittiön ja ruokailutilan. Varustuksena: täyskorkeat jääkaappi ja pakastin, astianpesukone, induktioliesi, erillisuuni, mikroaaltouuni ja liesituuletin. Lattiassa on hartsipinnoite. Seinät on pääosin maalattu, ja osittain laatoitettu isolla kuusikulmaisella laatalla.

Kph/wc/varusteet

Pesuhuoneen ja saunan (lattia) laattapintoihin on tehty hartsipinnoitus vuonna 2025. Tilava ja ikkunallinen tila.

Sauna

Ikkunallisessa saunassa on sähkökiuas. Lattia on hartsipinnoitettu ja pääosin seinät on paneloitu (yksi seinä on hartsipinnoitettu).

Vapautuu

Sopimuksen mukaan

Kunto

Hyvä

Energialuokka

B2018,

Yhtiö

Rakennusvuosi

2005

Tontin pinta-ala

2240 m²

Tontin omistus

Oma

Rakennusaine

Puu

Lämmitys

Maalämpö

Kaavoitustilanne

Yleiskaava

Hinta

Myyntihinta

489.000 €

Velaton hinta

489 000 €

Tätä kohdetta sinulle esittelee

Sari Kivinen

Myyntijohtaja YKV, LKV kaupanvahvistaja SKVL Laatuauktorisoitu kiinteistönvälittäjä

0400 46 1824

sari.kivinen@westhouse.fi

  • Kenttä on validointitarkoituksiin ja tulee jättää koskemattomaksi.
  • This field is hidden when viewing the form
Westhouse Lkv